- الصفحة الرئيسية
- المعوضات الإستاتيكية ( SVC)
- تطبيقات المعوضات الإستاتيكية SVC في القطاع الصناعي
تطبيقات المعوضات الإستاتيكية SVC في القطاع الصناعي
SVC for Industries

شركة TY Steel Co. Ltd هي واحدة من مصانع الحديد الرئيسية في تايلاند. حيث يوفر المصنع الطلب المحلي على الحديد، إضافة إلى تغطية سوق جنوب شرق آسيا. من أجل تلبية متطلبات تطور السوق، فإن مصنع TY Steel بدأ في مشروع التوسع لتركيب فرن قوس كهربائي (EAF) إضافي (55 ميجا فولت أمبير + زيادة حمل بنسبة 20%) مع فرن بوتقة (LF) إضافي (12 ميجا فولت أمبير) لمضاعفة الإنتاجية. هذه الأحمال الحديدة سوف تشغل بواسطة محول القدرة الجديد 115\35 كيلو فولت بقدرة مقننة 80 ميجا فولت أمبير. بالرغم أن اضافة فرن القوس الكهربائي من الطرق الجيدة لصناعة حديد بجودة عالية. إلا أتع تسبب في العديد من مشاكل الجودة لقدرة النظام الكهربائي للمصنع، مثل أخفاض معامل القدرة، أضطربات الجهد بتوافقات عالية وعدم إنزان الشبكة.
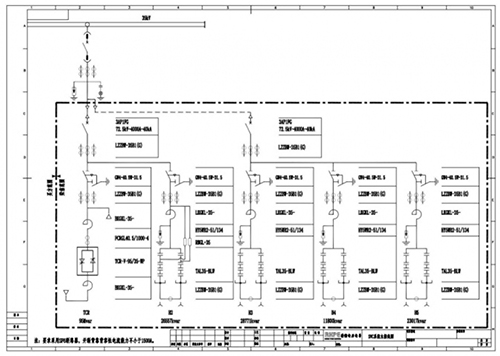
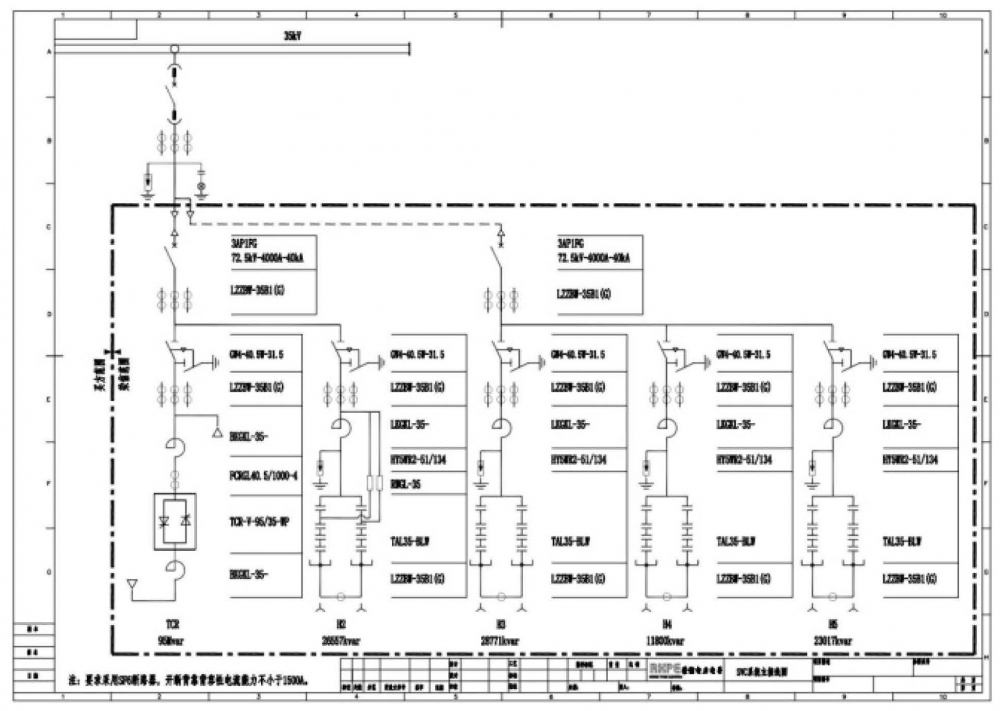
بعد الاختبار الدقيق للنظام، أقترحت شركة RXPE أجهزة المعوضات الساكنة SVC بقدرة 95 ميجا فار لمصنع TY Steel لحل مشاكل جودة القدرة. حيث كانت القيم المقننة للمعوضات – 5 ميجا فار (حثية) إلة + 90 ميجا فار (سعوية). أربع فروع للمرشح، حيث صمم وفقاً لاعتبار التوافقات .5th\4th\3rd\2nd لخصائص نشووه التوافقات لكلاً من فرن القوس الكهربائي (EAF) وفرن البوتقة (LF) وتفرع دائرة التحكم المفاعل بالثايرستور (TCR). كل هذه التفرعات موصلةمع نفس قضيب التوصيل 35 كيلو فولت أمبير للأفران.
إضافة إلى التصميم الجيد، فإن العميل قال للأسف لا يوجد أرضية كافية لتصميم المعوضات الإستاتيكية SVC العادية. بعد ذلك قامت شركة RXPE بالتحقق بعناية من الأرضية المتاحة للموقع وفي النهاية أقترحة نموذج الطبقتين لمخطط المعوضات الساكنة SVC لمصنع TY Steel، مع دائرة التحكم المفاعل بالثايرستور (TCR) لتفرعات فرن البوتقة (FC) للتوافقات .5th\4th\3rd\2nd الواقعة في الدور الأول (الدور الأرضي) بينما تفرعات مرشح فرن البوتقة (FC) للتوافقات5th\4th في الدور الثاني (السقف). المبنى النصف مفتوح صمم بعناية بإرتفاع كافي وتركيبة خاصة من قضبان الفولاذ في داخل الإنشاء.
صمامات ثايرستور التحفيز بإنتقال الكهرباء (ETT) المستخدمة في تفرع دائرة التحكم المفاعل بالثايرستور (TCR) مع طريقة التبريد الماء بالماء. نظام التحكم والحماية RXPE-11A مجهز بنهج (بخوارزمية) للتعويض المبتكر من قبل شركتنا (التحكمات بدمج الحلقة المغلقة والحلقة المفتوحة) مع السرعة العالية والتعويض الدقيق.
أجهزة المعاوضات الساكنة للقدرة غير الفعالة SVC لمصنع TY Steel تم ضبطها في سنة 2017. مع استخدام المعوضات الإستاتيكية SVC في مصنع الحديد أدت إلى الزيادة الكبيرة في الإنتاجية مع استخدام الأفرن الجديدة، إضافة إلى ذلك، التوافق الكامل مع متطلبات جودة القدرة في تايلاند.



