- الصفحة الرئيسية
- المعوضات الإستاتيكية ( SVC)
- تطبيقات المعوضات الإستاتيكية SVC في القطاع الصناعي
تطبيقات المعوضات الإستاتيكية SVC في القطاع الصناعي
SVC for Industries

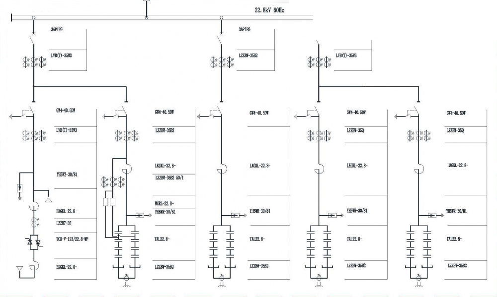
شركة Chien Shun Steel واحدة من الشركات الرائدة في صناعة الحديد والصلب في تايوان. من أجل زيادة قدرتها الإنتاجية، قاموا بالبدء في توسيع مشروع فرن القوس الكهربائي (EAF) بقدرة 78 ميجا فولت أمبير. الفرن الحديد يشغل بـ 161 كيلوفولت\22.8 كيلو فولت ومحول قدرة بقيمة مقننة 90 ميجا فولت أمبير.
الفرن تسبب في أحداث العديد من مشاكل جودة القدرة للشبكة مثل التوافقاتـ وأضطرابات جهد الشبكة، وعدم الإتزان.

بعد دراسة النظام، فإن RXPE أقترحت استخدام المعوضات الساكنة للقدرة غير الفعالة بقدرة 115 ميجا فار عند قصيب التوصيل لفرن القوس الكهربائي EAF بجهد 22. 8 كيلو فولت لحل مشاكل جودة القدرة هذه، بينما تأخذ في عين الإعتبار بعض هوامش السعة في توسع الأحمال المستقبلية وفقاص لمتطلبات العميل.
القيم المقننة للمعوضات الإستاتيكية كانت 8 ميجا فار (حثية) مع 5 ميجا فار (سعوية). أربع فروع للمرشح، حيث صمم وفقاً لاعتبار التوافقات .5th\4th\3rd\2nd مرشح التوافقية 2ndصمم كنوع C للتقليل من فقودات القدرة الفعالة.
صمام ثايرستور التحفيز بإنتقال الكهرباء (ETT) بحيث صمم بتفرع دائرة التحكم المفاعل بالثايرستور (TCR) مع طريقة التبريد الماء بالماء.
أحدث نظام RXPE-11A C&P للتحكم للمعوضات الإستاتيكية SVC مجهز بنهج (بخوارزمية) للتعويض المبتكر من قبل شركتنا (التحكمات بدمج الحلقة المغلقة والحلقة المفتوحة) مع السرعة العالية والتعويض الدقيق. خبرة التشغيل للعميل حسنت بشكل كبير، ويعود الفضل في ذلك إلى " نقرة واحدة" بوظائف التشغيل والإيقاف، علاوة على الخصائص الأخرى مثل التحكم التسلسلي الآلي للأحداث الملخصة بمزامنة الوقت الموحد والتداخل، الخ.
أجهزة المعاوضات الساكنة للقدرة غير الفعالة SVC لمصنع Chien Shun Steel تم ضبطها في سنة 2018. مع استخدام المعوضات الإستاتيكية SVC في مصنع الحديد أدت إلى الزيادة الكبيرة في الإنتاجية، إضافة إلى حل مشاكل جودة القدرة. مقارنة القياسات الحقيقة مع أو بدون استخدام أجهزة المعوضات الساكنة SVC تبين أن أجهزة SVC لشركة RXPE وصلت إلى عامل تخفيف للأضطرابات أعلى من 50% ، بحيث يكون التنظيم العادي كحد نظري لأجهزة المعاوضات الساكنة SVC.



